本更新單元為新北市新莊區新泰國小南側街廓之北側部分土地,基地東臨12m公園一路,包含北側8m未開闢計畫道路、公園一路75巷(現有巷道)及兩側5層樓建築物。

本更新單元內建築物屬高氯離子混凝土建築物,除建築物均已超過使用年限、屋況老舊以及建築物未能符合現代化機能外,更有居住安全上之擔憂,透過更新改建,除可提升居住環境品質外,更可解決該建築物之居住安全以及對於都市安全所帶來的隱憂。

 

《 更新前 》
《 更新後 》
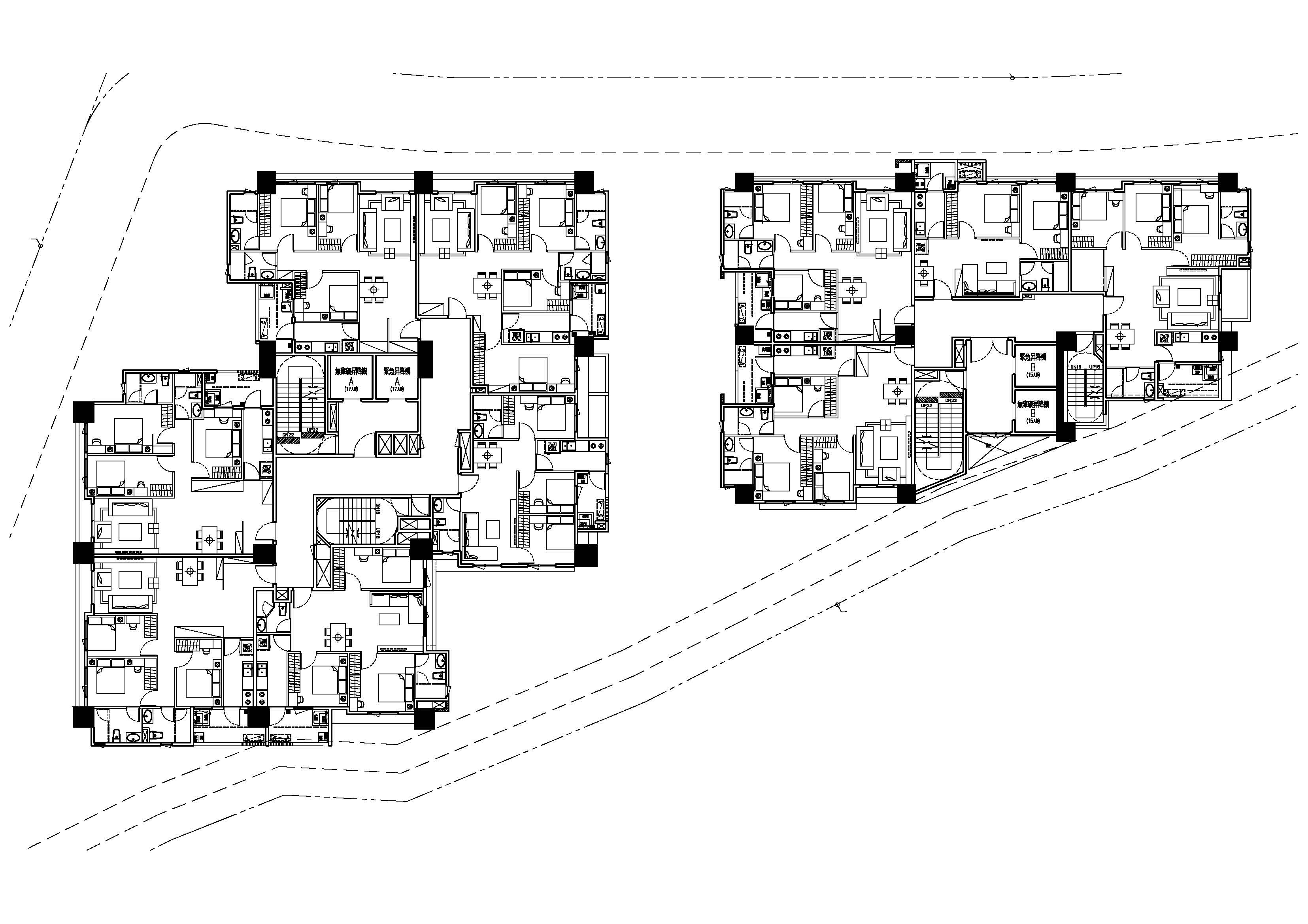
《 標準層平面圖 》
《 最新進度說明 》
《 執行個案 》